73, Via Armando Diaz, Cavaria, Cavaria con Premezzo, Varese, Lombardia, 21044, Italia
In posizione strategica, a 800 metri dall’uscita dell’autostrada e vicinanze Stazione al confine con Gallarate, zona dotata di tutti i servizi primari (banche, scuole, negozi, supermercati, farmacia, ecc..).
Villa Singola recentemente ristrutturata, su unico livello, con giardino sui quattro lati di mq. 280.
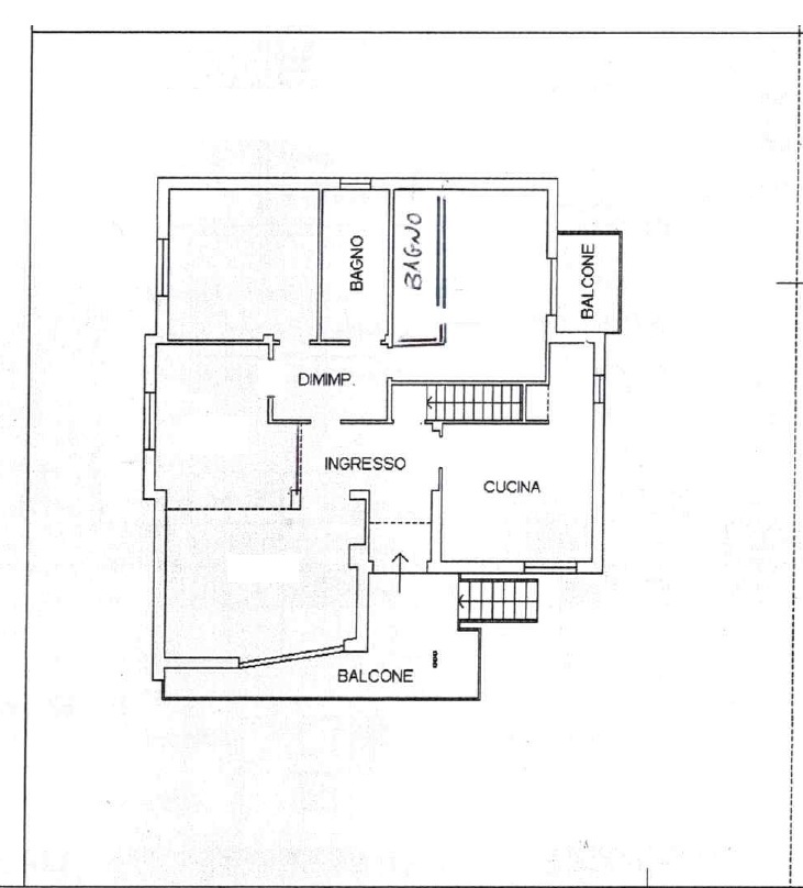
Piano rialzato di mq. 120 con terrazzino, ingresso, cucina abitabile, soggiorno, camera con bagno padronale e balcone, due camere matrimoniali, bagno, scala interna che porta al piano seminterrato di mq. 120 con riscaldamento, anche con accesso esterno, box doppio in lunghezza, bagno, locale caldaia, lavanderia, locale hobby, cantina. Lavori effettuati nel 2024: bagni e cucina completi, serramenti in pvc con triplo vetro, tapparelle in alluminio, tende solari, pavimenti in gress, porte in legno alcune a vetro, impianto elettrico, videocitofono, tv satellitare, pompe di calore caldo/freddo, stufa a pellet, facciata con vernice idrorepellente, tetto c.a. revisionato, abbassamenti in cartongesso termoisolati, pareti a nord isolate, basculante e cancelli automatizzati.
Compila il modulo sottostante e un membro del nostro team ti contatterà al più presto.
In posizione strategica, a 800 metri dall’uscita dell’autostrada e vicinanze Stazione al confine con Gallarate, zona dotata di tutti i servizi primari (banche, scuole, negozi, supermercati, farmacia, ecc..).
Villa Singola recentemente ristrutturata, su unico livello, con giardino sui quattro lati di mq. 280.
Piano rialzato di mq. 120 con terrazzino, ingresso, cucina abitabile, soggiorno, camera con bagno padronale e balcone, due camere matrimoniali, bagno, scala interna che porta al piano seminterrato di mq. 120 con riscaldamento, anche con accesso esterno, box doppio in lunghezza, bagno, locale caldaia, lavanderia, locale hobby, cantina. Lavori effettuati nel 2024: bagni e cucina completi, serramenti in pvc con triplo vetro, tapparelle in alluminio, tende solari, pavimenti in gress, porte in legno alcune a vetro, impianto elettrico, videocitofono, tv satellitare, pompe di calore caldo/freddo, stufa a pellet, facciata con vernice idrorepellente, tetto c.a. revisionato, abbassamenti in cartongesso termoisolati, pareti a nord isolate, basculante e cancelli automatizzati.
€160.000
Visualizza Dettagli€375.000
Visualizza Dettagli€180.000
Visualizza DettagliCopyright © 2024 Galeazzo Immobiliare di Galeazzo Moreno | P.iva 02124110129 | Informativa clienti | Designed by ChickenHOUSE
PREZZO TRATTABILE!!!! CAPANNONE INDIPENDENTE SU UN UNICO LIVELLO CON AREA PRIVATA
Owning a home is a keystone of wealth… both financial affluence and emotional security.
Suze Orman